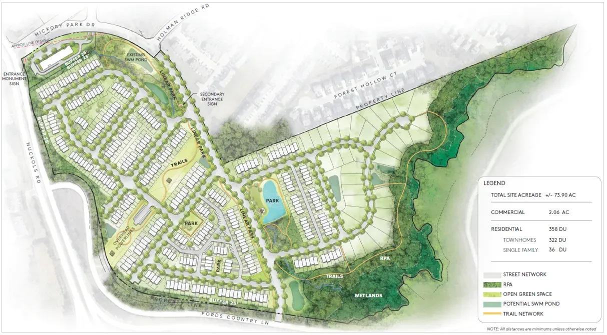
Plans for the proposed Westford Glen subdivision in Glen Allen were rejected by the Henrico Board of Supervisors Dec. 2. (Courtesy Henrico County/Main Street Homes of VA Inc./Schell Brothers)
At its public meeting March 24, the Henrico Board of Supervisors approved bonds of as much as $7.5 million to Carter Woods IV LLC, which will go toward constructing a 53-unit multifamily rental housing facility in the Varina District.
Carter Woods, an affiliate of the Better Housing Corporation, plans
An arena? A park? A zoo? Henrico County and nearby residents have several ideas for the former site of Best Products’ headquarters, which sits just east of Brook Road.
At a March 23 planning workshop attended by more than 60 residents, Henrico Planning Director Joe Emerson said that the county’
Henrico Schools officials reported March 20 that 13 schools throughout the county were struggling with heating and cooling issues, with four schools experiencing HVAC problems schoolwide.
HCPS has reported heating issues at more than a dozen schools this past winter, according to HCPS spokesperson Eileen Cox, with most of those