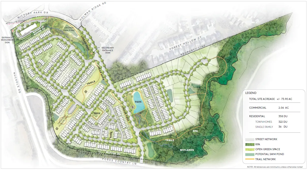
Government Plans for 358-home development along Nuckols Road advance Click here to read more , and Joseph Maltby, Citizen Contributor November 20, 2025
Public Safety Pedestrian hospitalized after being hit by driver in West End Click here to read more , and WTVR CBS 6 October 15, 2025
Glen Allen 2 juveniles arrested, charged with weekend carjacking in Far West End Click here to read more , and Citizen Staff Reports June 24, 2024