Skip to content

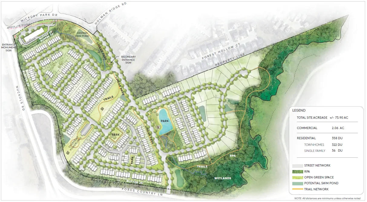
Plans for 358-home development along Nuckols Road advance • Tractor-trailer driver charged with reckless driving after 5-car crash on I-295 in Henrico