Skip to content

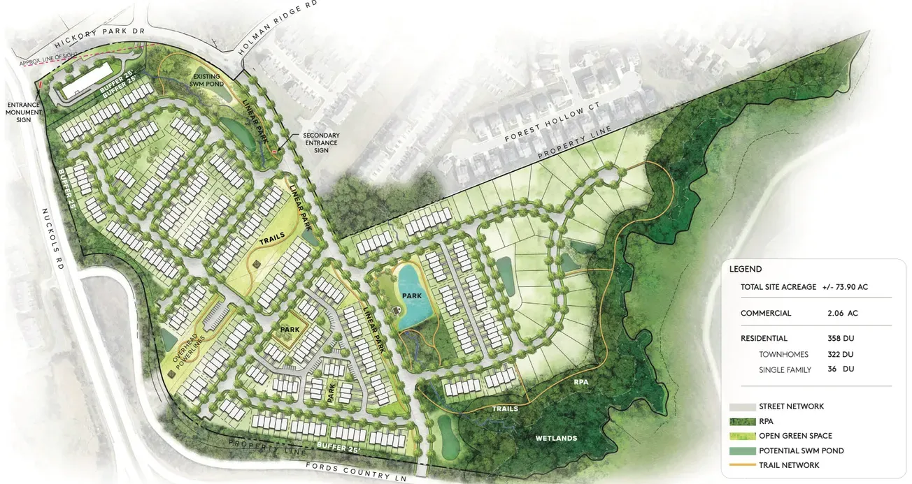
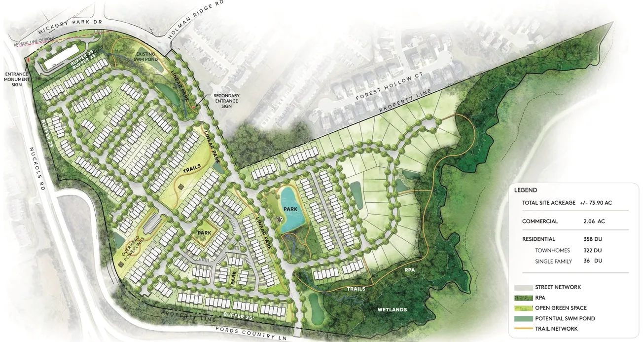
Henrico Planning Commission to weigh proposals for 358 new homes in Glen Allen, 103 in Eastern Henrico • Henrico WWII veteran, 103, holds fond memories of Paris, savoring freedom