Skip to content

Table of Contents

A look at the most-read articles on HenricoCitizen.com this week.

Proposed data center incites opposition from hundreds of Henrico, Hanover residents
A crowd of several hundred people packed the gymnasium of South Anna Elementary School Nov. 17 in Hanover to push back against the Hunting Hawk Technology Center proposed on the Hanover-Henrico border. The four million-square-foot data center project, headed by regional developer HHHunt, would include 10 62-foot buildings built on
Henrico Police chief announces 90% drop in homicides, 12% decrease in crime
The Henrico Division of Police has had a “phenomenal year” in 2025, according to Chief Eric English, with the county seeing a 90.4% decline in homicides and a 12% reduction in total crime since 2024. As of Nov. 20, Henrico has only seen two homicides this year, a significant
Dashcam captures tractor-trailer crashing into work crew on I-295 in Henrico
Four people went to the hospital Wednesday night after a tractor-trailer crashed into a work crew repairing potholes on Interstate 295 in Henrico County. Dashcam video from another driver captured the big rig driving into the crew working on I-295 south near the exit (28A) for Interstate 64 east just
‘Know Your Rights’ event captures Henrico residents’ Constitutional worries
A panel of legal experts imparted information about growing concerns about Constitutional rights to a crowd of more than 100 people at the Mt. Olive Baptist Church in Glen Allen Nov. 19. Topics focused on interacting with law enforcement and the justice system, understanding personal rights, immigrant rights in the
Richmond Gun Show showcases weaponry steps from Henrico’s firearms hotspot
Showmasters Gun Shows filled two expo rooms with hundreds of vendors Nov. 15-16 at the Richmond Raceway, offering a broad range of weaponry for sale including AK rifles, historical arms and memorabilia. Also up for sale were tables upon tables of handguns, shotguns, ammunition, holsters, safes, antique pistols, swords, knives,
Community rallies after vandal chainsaws beloved Glen Allen Christmas tree weeks before holiday celebration
A beloved 40-foot cedar tree that served as the centerpiece for the Cultural Arts Center at Glen Allen’s annual illumination celebration was vandalized by someone with a chainsaw just weeks before this year’s event. The tree, which had been the focal point of the holiday tradition for 27 years, was
National music acts returning to Innsbrook in 2026
National musicians and bands will return to the Innsbrook Pavilion in 2026, as part of an expanded After Hours Concerts season at the site, organizers announced Nov. 26. EventMakers USA, which brought live music back to the pavilion this year through a Tribute Thursdays series featuring tribute bands, heard from
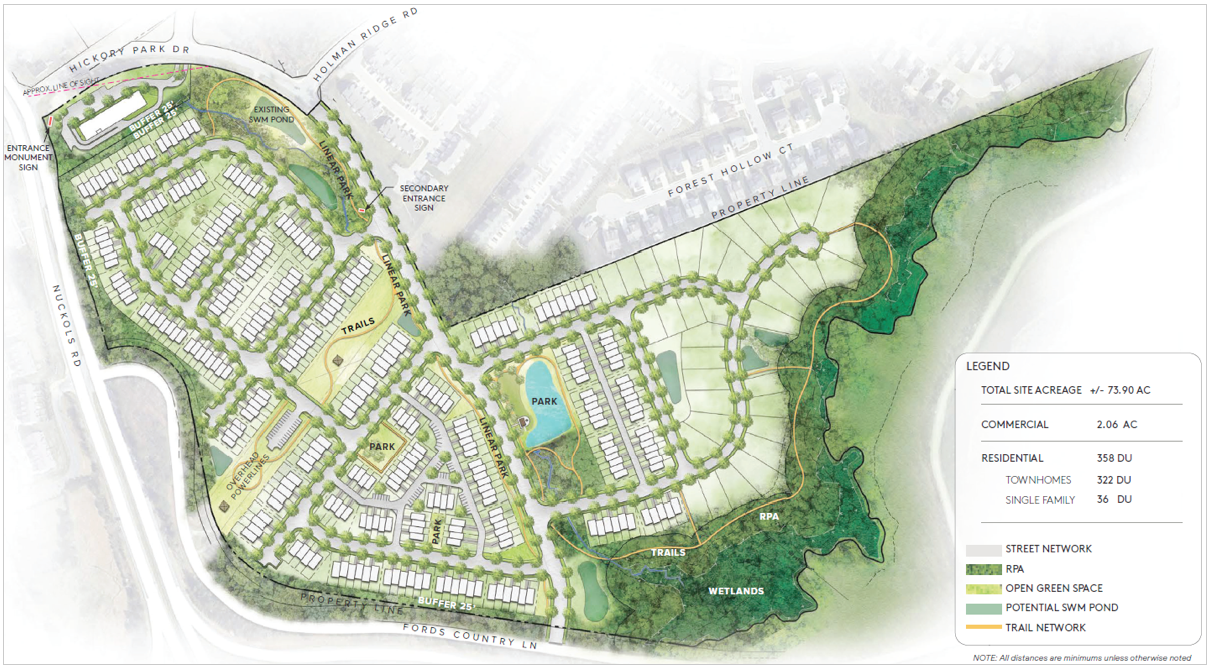
Plans for 358-home development along Nuckols Road advance
Plans for a 358-home subdivision near the I-295/Nuckols Road interchange in Glen Allen earned the endorsement of the Henrico Planning Commission at its Nov. 13 meeting. The commission recommended approval of the proposal, from Main Street Homes of VA Inc. and Schell Brothers, for the Westford Glen community, which
Plans for bright, airy consolidated security checkpoint design highlighted during RIC meeting
Airport officials were expecting 180,000 travelers to stream through Richmond International Airport for the Thanksgiving holiday, with passengers embarking on their journeys starting last Thursday and continuing through this coming Monday. The busy travel season comes after data showed that RIC, during the FAA-mandated “capacity reductions on aviation” as
Pardon me: Vithoulkas gives holiday reprieve to aging bird
Henrico senior citizen and 19-year-old turkey Todd Fowler will see the light of another day after he was officially pardoned by Henrico County Manager John Vithoulkas Nov. 21. Mr. Fowler, who resides at Meadow Farm in Crump Park, is a whopping 200 years old in human years, said Henrico Recreation

Comments